华体会网页版登录入口

华体会网页版登录入口-华体会(中国)-华体会(中国) 华体会网页版登录入口-华体会(中国)-华体会(中国) 政策法规 产业市场 节能技术 能源信息 宏观环境 会议会展 活动图库 资料下载 焦点专题 智囊团 企业库
节能技术  中国节能产业网 >> 节能技术 >> 节能案例 >> 正文
环冷机液密封技术
来源:中国节能产业网 时间:2015-5-21 17:58:00 用手机浏览

一、技术名称:环冷机液密封技术

二、技术所属领域及适用范围:钢铁行业 烧结工序烧结矿冷却

三、与该技术相关的能耗及碳排放现状

我国现有烧结机1200余台,总面积约110000m2。2011年,我国粗钢产量为6.83亿t,据此计算,冷却烧结矿所需电耗达到50亿kWh。

目前,我国烧结矿冷却机绝大部分以鼓风冷却为主,以常温空气作为冷却介质,利用鼓风机的推动力,使常温空气持续穿过高温物料,并与其进行热交换,从而使高温物料快速冷却。经过破碎后的热烧结矿,其温度约800℃,需将其冷却到150℃以下供后续流程使用。目前国内外使用的环式冷却机主要采用橡胶件与环锥面接触密封,而环冷机的半径一般在10-40m之间,在制造及安装过程中,难以保证结构尺寸的精准,在长期运行过程中又不可避免地产生磨损和变形,导致密封效果下降,据统计,当前运行的环冷机漏风率平均为30%左右,导致配置的鼓风机装机容量偏大,且不利于冷却风余热利用。目前该技术可实现节能量3万tce/a,CO2减排约8万t/a。

四、技术内容

1.技术原理

基于动密封机理、流体力学原理、气液两相动平衡密封原理,以及大型环状设备运动学和动力学,在高速气流的条件下,以水作密封介质构造液密封环冷机密封系统。

2.关键技术

(1)气液两相动平衡密封技术;

(2)热工过程仿真分析及优化技术;

(3)环向气液密封技术;

(4)高效气固传热技术;

(5)气流均衡散料处理综合技术;

(6)以台车为单元的复合静密封技术;

(7)高温烟气循环区液体防汽化技术。

3.工艺流程

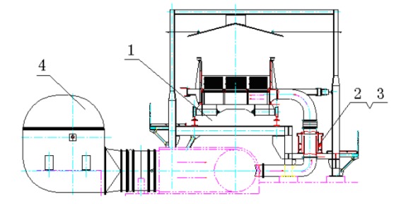
环冷机液密封装置见图1。

 

1 双层台车 2 液密封环形风道设备 3 环形风道的环向密封装置 4 风机

图1 环冷机液密封示意

五、主要技术指标

1.设备性能参数

(1)有效冷却面积:180-720m2 ;

(2)处理能力:360-1540t/h;

(3)有效冷却时间:35-75min;

(4)冷却矿温度低于120℃;

(5)吨烧结矿冷却风量:2100-2400m3/h;

(6)风机风压:4070-3648Pa。

2.技术指标

总漏风率:<5%(其中:水密封漏风率约为0.5%;静密封漏风率<4.5%)。

3.主要能耗指标

电耗:4.3kWh/t成品烧结矿。

六、技术鉴定、获奖情况及应用现状

该项技术于2011年通过湖南省科技厅组织的成果鉴定,技术达到了国际领先水平,是当前国内外烧结矿冷却技术及装备上的一次重大突破。

该技术可广泛应用于烧结冷却作业领域,新建和改造的环冷机均可采用,目前该技术已在国内多家烧结厂应用。

七、典型应用案例

典型用户:湖南华菱涟钢钢铁有限公司,南京钢铁股份有限公司,济南钢铁股份有限公司,陕西龙钢(集团)有限责任公司,安阳钢铁股份有限公司,唐钢集团燕山钢铁股份有限公司,攀钢集团西昌新钢业有限公司等

典型案例1

技术提供单位:中冶长天国际工程有限责任公司

建设规模:420㎡烧结环冷机改造。主要技改内容:将传统环冷机改造为液密封环冷机,主要设备为液密封环冷机。节能技改投资额2500万元,建设期6个月。每年可节能4500tce,年节能经济效益为605万元(仅考虑节约风机电耗),投资回收期约4年。

典型案例2

技术提供单位:中冶长天国际工程有限责任公司

建设规模:228 ㎡烧结环冷机。主要技改内容:将传统环冷机改造为液密封环冷机,主要设备为液密封环冷机。节能技改投资额1800万元,建设期6个月。每年 可节能2100tce,年节能经济效益298万元(仅考虑节约风机电耗),投资回收期约6年。

八、推广前景及节能减排潜力

我国每年有近10亿t热烧结矿需通过环冷机进行冷却,总有效冷却面积达7.6万m2,目前在运行的环冷机基本上为传统环式冷却机,改造潜力较大。预计未来5年,该技术在行业内的推广潜力可达到10%,预计投资总额10亿元,年节能能力10万tce/a,二氧化碳减排能力26万tCO2/a。


分享到:
华体会网页版登录入口相关的文章 iTAG:
没有相关技术
频道推荐
服务中心
微信公众号

CESI
关于本站
版权声明
广告投放
网站帮助
联系我们
网站服务
会员服务
最新项目
资金服务
园区招商
展会合作
中国华体会网页版登录入口-华体会(中国)-华体会(中国) 上线下相结合的一站式节能服务平台。
©2007-2016 news-store.com
鄂ICP备16002099号
节能QQ群:39847109
顶部微信二维码底部
扫描二维码关注官方公众微信